OMEC OTTOO UNIVERSELE CILINDERBALK PTC184 - 1 STUKS

https://besa-sloten.be/web/image/product.template/11233/image_1920?unique=62f391f
13.92 EUR 13.92

16,84 € 16,84 €

13,92 € 13,92 € excl. BTW

Voorraad: 48.00 Stuks
Locatie(s): K/-1-I9.5

13,92 € Exclusief btw

PRIJS OP AANVRAAG

  • Categorie
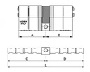
  • Maat A (mm)
  • Maat A (mm)
  • Maat A (mm)
  • Maat B (mm)
  • Maat B (mm)
  • Maat B (mm)
  • Maat C (mm)
  • Maat D (mm)

Deze combinatie bestaat niet.

Categorie: Verbindingsbalk
Maat A (mm): 30, 40, 50
Maat B (mm): 75, 85, 95
Maat C (mm): 33
Maat D (mm): 78


Artikelnummer: PTC184
Barcode: 8050849078342