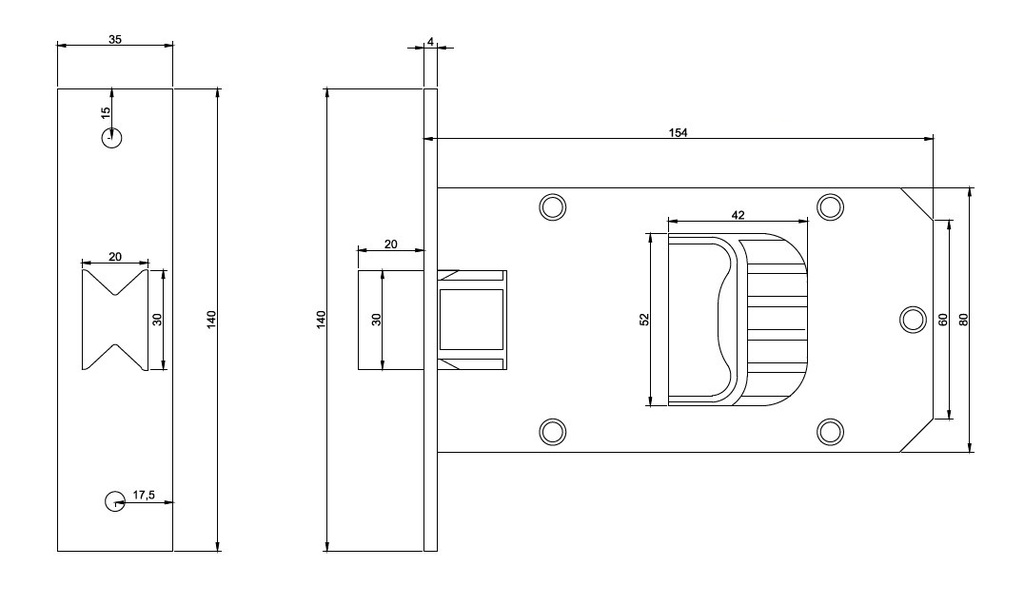
BEVER PAARDENBOXSLOT
| Merk: BEVER |
Artikelnummer:
300122
Barcode:
Je Dynamic Snippet wordt hier weergegeven...
Dit bericht wordt weergegeven omdat je niet zowel een filter als een sjabloon hebt opgegeven om te gebruiken.